Hamilton Square

Hamilton Square

Jersey City, NJ - A combination of renovation, rehabilitation, and new construction to create 400,000 of mixed-use living space in historic Hamilton Square. Project features the conversion of an old hospital building to approximately 200 residences.

Yuzu

Yuzu

Yuzu, San Francisco is a Japanese restaurant design/build remodel completed autonomously in 2013 featuring custom feature wall, crafted lamp shades, graphics, and LED backlit bar shelving.

Hanson Place

Hanson Place

A floor plan for the renovation of Brooklyn's tallest building. This was one of my first projects working in NYC architecture and my role was primarily CAD drafting, MEP coordination, and surveying of existing conditions.

Detail

Detail

A sample detail for a spandrel glass parapet with guardrail at an elevated terrace in NYC.

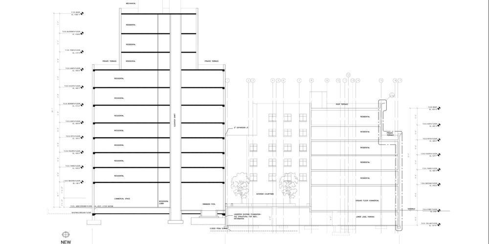
Ludlow

Ludlow

A section through a Lower-Manhattan boutique hotel project that I led programming and layout design for in 2006.